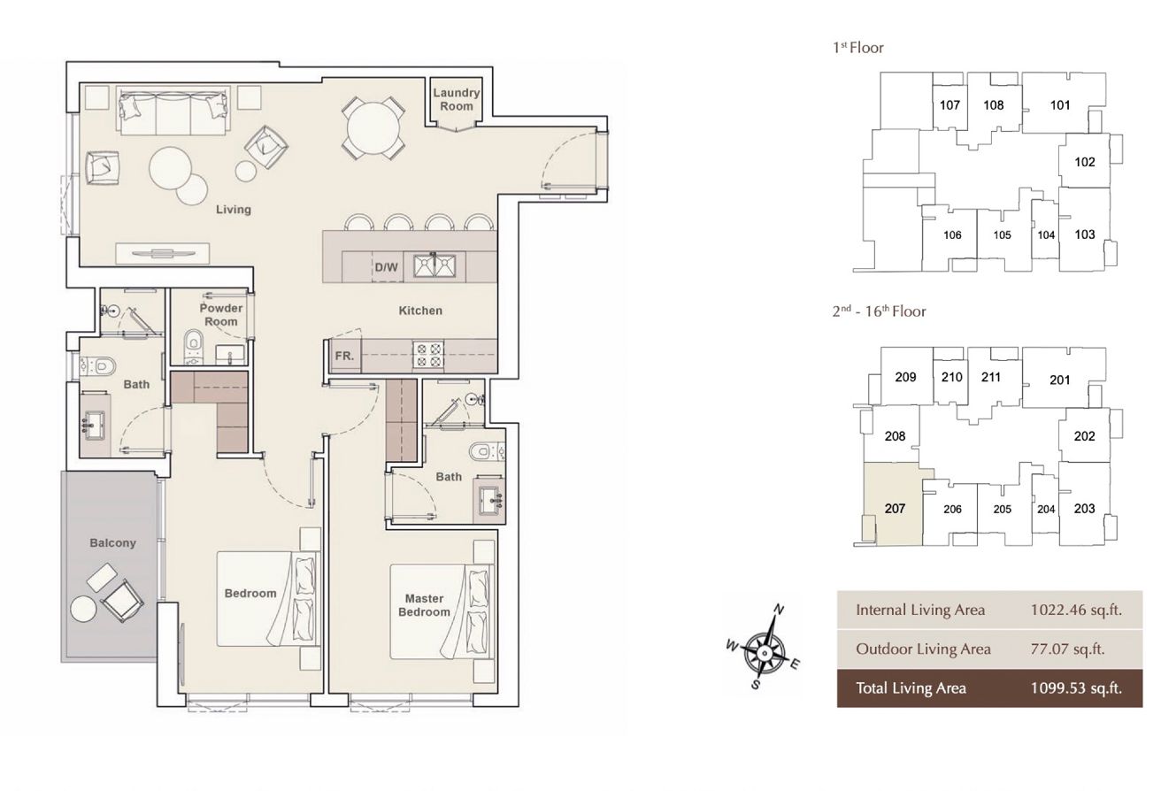
Luxury 3BR + Maid | Fully Furnished | Burj crown
Al Hilal Homes is delighted to offer this fully furnished 3 beds plus maid in the beautiful, recently handed over…
300,000 AED
Owning a home is a keystone of wealth… both financial affluence and emotional security.