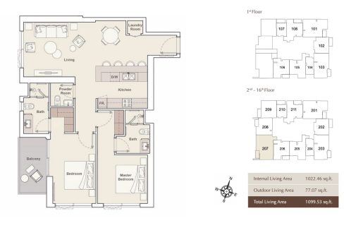
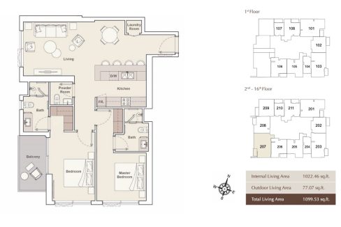
Modern 2Bedroom Apartment in the Heart of Zaabeel
Al Hilal Homes presents this stunning 2-bedroom apartment in the prestigious Za’abeel district – a perfect blend of modern luxury…
3,900,000 AED
Owning a home is a keystone of wealth… both financial affluence and emotional security.
Please enter the 6-digit OTP sent to your email.
Time remaining: 05:00